









Одноэтажный дом
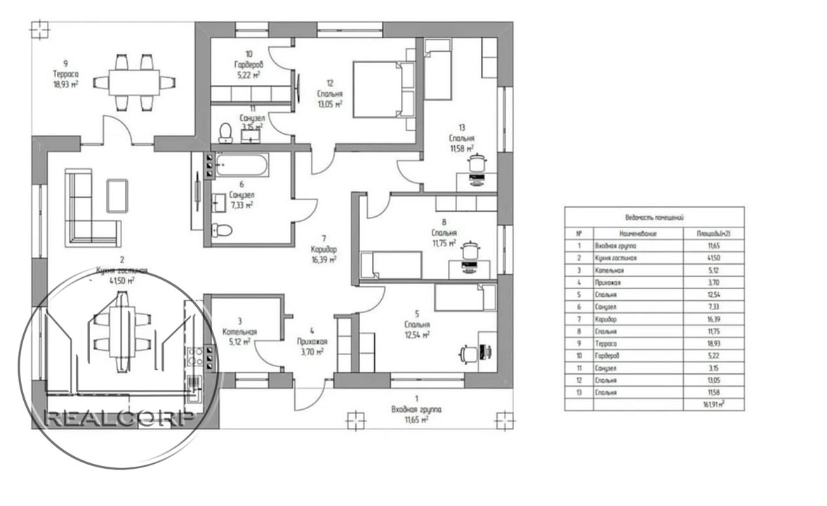
Красивый и уютный дом Общая площадь - 162 кв.м Стоимость данного дома, материал и работа 12 200 000 (Проекты даны в ознакомительных целях) 📌Помните, Вы всегда можете внести изменения в типовой проект! Или заказать строительство дома по своему проекту. Комплектация: 1. Фундамент: плита , свайно ростверковый , ленточный 2. Бетонные полы 3. Несущие стены из газобетона 400 мм 4. Межкомнатные перегородки из газобетона толщиной 100мм 5. Фасад облицовочный кирпич Браер - цвет на ваш выбор, на темном шве.(возможен ваш вариант отделки фасада ) 6. Разгрузочный армопояс 7. Кровля теплая 200мм базальтовым утеплителем 8. Кровля металлочерепица Гранд Лайн 0,5мм цвет - графит 9. Подшивка свесов кровли , входной группы, террасы - ПВХ Сафиты , цвет - графит 10. Водосточная система производства Гранд Лайн диаметр 100мм 11. Кирпичные вентшахты 12. Капитальное Крыльцо ( столбы, навес) 13. Пластиковые окна Rehau 60 мм. 14. Открытая терраса
