







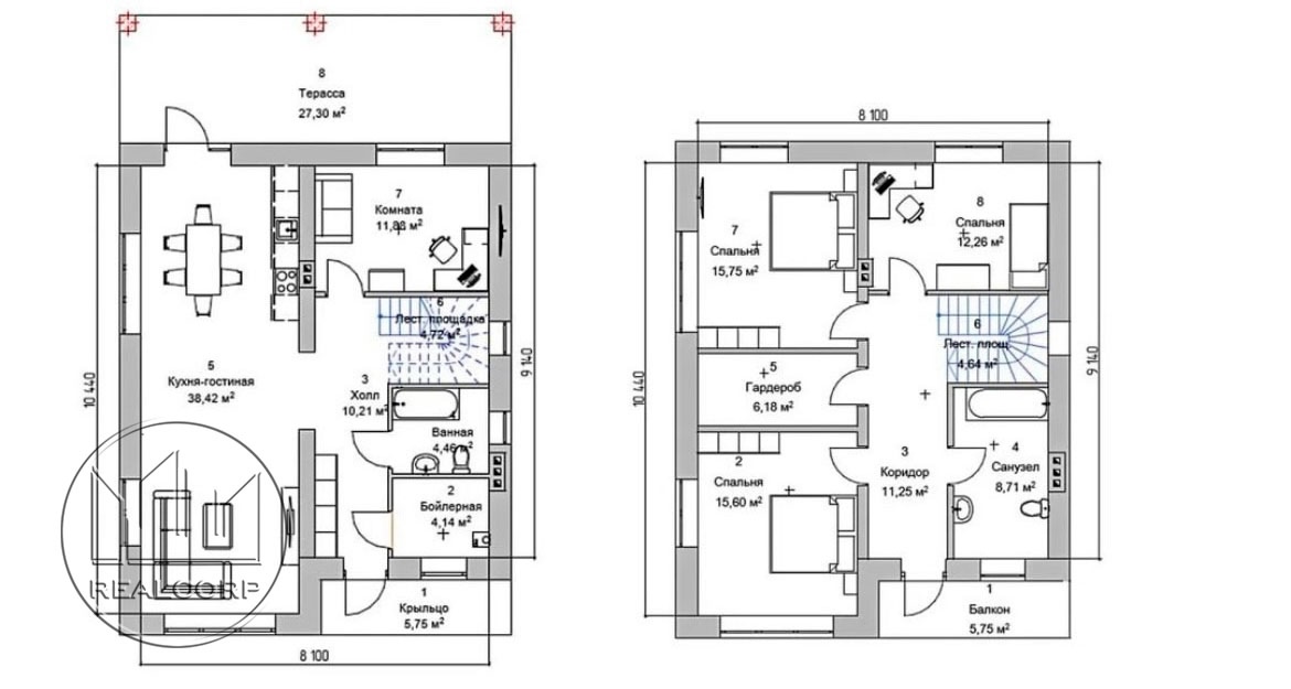
Двухэтажный дом
Эскизный проект двухэтажного дома. Общая площадь: 187 м2 Стоимость данного дома, материал и работа 13 500 000 (Проекты даны в ознакомительных целях) 📌Помните, Вы всегда можете внести изменения в типовой проект! Или заказать строительство дома по своему проекту. Комплектация: 1. Фундамент: плита , свайно ростверковый , ленточный 2. Бетонные полы 3. Несущие стены из газобетона 400 мм. 4. Межкомнатные перегородки из газобетона толщиной 100мм 5. Фасад облицовка одинарным кирпичом ( возможен ваш вариант отделки фасада ) 6. Разгрузочный армопояс 7. Кровля теплая 200мм базальтовым утеплителем 8. Кровля Металлочерепица производства Гранд Лайн 9. Подшив свесов кровли ПВХ софитом производства Гранд Лайн 10. Водосточная система производства Гранд Лайн диаметр 100мм 11. Кирпичные вентшахты 12. Трубчатое Снегозадержание производства Гранд Лайн 13. Капитальное Крыльцо 14. Пластиковые окна Rehau 60 мм.
